Новорижское ш., 32 км, д. Супонево.
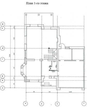
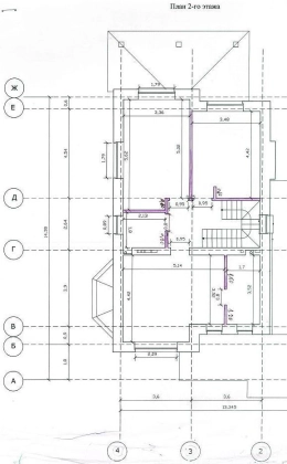
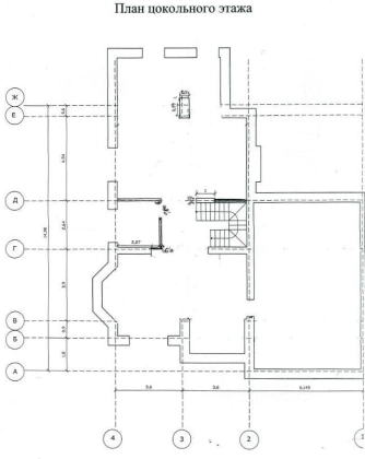
Коттедж 354,4 кв. м под чистовую отделку в закрытом коттеджном поселке Величъ. Дом 2021 года постройки из кирпича с монолитными перекрытиями на монолитном фундаменте. Застекленная панорамная веранда, сауна, камин дровяной в гостиной с высокими окнами, лестницы-монолит, теплый гараж на два машиноместа, отмостка и площадка перед домом из гранита. Есть проект отделки интерьера и исполнители. Три спальни на втором этаже + гостевая спальня с окнами в цокольном, высокий потолок 3м, 4 с/у. Цокольный этаж (потолок 3 м).
Коммуникации: подключены электричество, водопровод, городская канализация, отопление, газ (котёл Viessmann).
Участок 12,5 соток под ИЖС. Участок огорожен, сделана планировка, дренаж, полив, посажен газон, туи по периметру. Поселок статусный, хорошо охраняемый, небольшой (75 домовладений), со своей экосистемой: бассейн, фитнес, два СПА. Два ресторана, гостиница, открытый и закрытый корт, начальная школа и детский сад, 4 га парка и красивый канал, прогулочные зоны, детские площадки.
Рядом вся необходимая инфраструктура.
Удобная транспортная доступность по Новорижскому шоссе или платному дублеру М-1.
Расположениедеревня Супонево
Notice (1024): Element Not Found: Elements/Realty/sold_object_modal.ctp [CORE/Cake/View/View.php, line 425]



























