Минское шоссе, 111 км, д. Шебаршино.
Коттедж 100 кв. м «под ключ» в закрытом охраняемом коттеджном поселке Экотон.
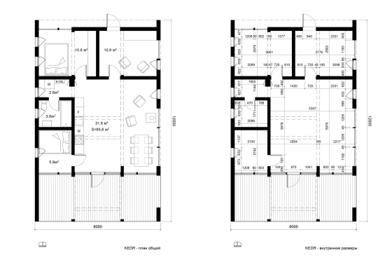
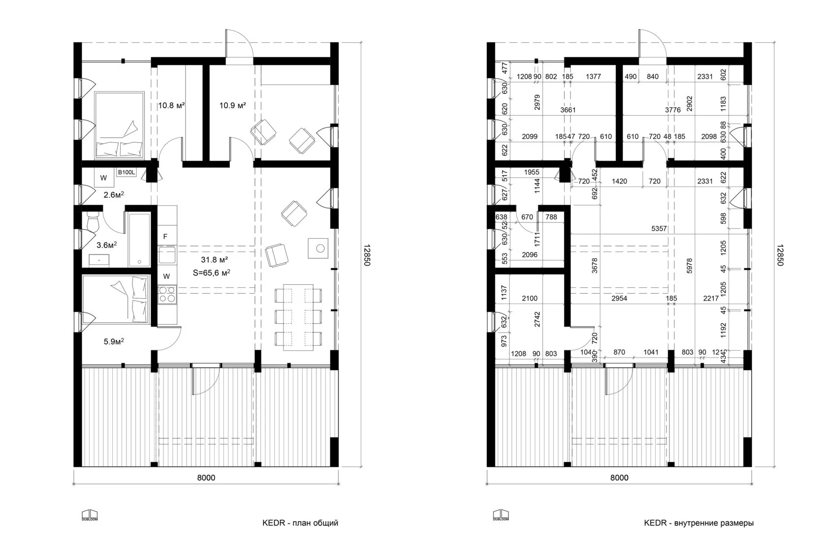
Дом по проекту Кедр компании ДубльДом. 1 этаж. Площадь дома – 65 м², общая площадь застройки – 102.8 м². Натуральные и экологически чистые материалы. Снаружи дом отделан деревом и профлистом цвета серый графит. Внутренняя отделка –массив дерева. Утепление 200 мм в полу и 150 мм в стенах и крыше. Межкомнатные двери массив, окна двухкамерные стеклопакеты в деревянных рамах, панорамное остекление по боковому фасаду. Дом сдаётся полностью готовый к проживанию, оборудованный сантехникой, установленным бойлером, вентиляционным клапаном, камином с комплектом дымохода, со всеми заведёнными в дом и подключёнными коммуникациями.
От момента заключения договора подряда до сдачи дома в эксплуатацию 2-3 месяца.
Возможно производство и установка авторской мебели в соответствии с дизайном дома и пожеланиями заказчика.
В доме: просторная кухня-гостиная; 2 спальни; прихожая, которую можно использовать как кабинет или третью спальню; бойлерная и санузел с ванной.
Идеальный размер и планировка для проживания 2-4 человек.
Коммуникации: электричество 15 кВт, отопление электрическое, горячая вода бойлер, холодная вода скважина, канализация септик, высокоскоростной интернет.
Участок 10 соток под ИЖС огорожен забором с автоматическими воротами, имеется озеленение и тропиночная сеть, парковочное место на 2 автомобиля.
Закрытая охраняемая территория с видеонаблюдением, пунктом КПП и шлагбаумом, детские и многофункциональная спортивные площадки, зона отдыха, речка с собственным пляжем, рядом Усадьба Клементьево, школа, больница, амбулатория, почта, магазин. В 10 мин. на машине Можайское водохранилище.
Удобная транспортная доступность с Минского и Можайского шоссе.
Расположениедеревня Шебаршино
Notice (1024): Element Not Found: Elements/Realty/sold_object_modal.ctp [CORE/Cake/View/View.php, line 425]











































