Продается дом, 259 кв.м., /3 эт
| Стоимость | 30 000 000 |
|---|---|
| Комнат в доме | 5 |
| Категория земли | ИЖС |
| Тип комнат | раздельные |
| Право собственности | Собственник |
| Тип парковки | Открытая во дворе |
| Ремонт | Евро |
| Тип строения | Коттедж |
| Площадь, кв.м. | 259 |
| Площадь участка, сот | 17 |
| Этажность | 3 |
| Материал стен | Кирпич |
| Населенный пункт | Кубинка |
|---|---|
| Район города | станция Кубинка-2 |
| Шоссе | Минское |
| Доп. Шоссе | Можайское шоссе (Москва) |
| Населенный пункт рядом | Кубинка-2 |
| От МКАД, км | 45.00 |
Минское ш., 45 км, Кубинка-2.
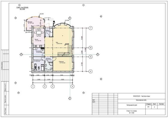
Коттедж 258 кв. м «под ключ» в солидной огороженной коттеджной застройке. Дом 2016 года постройки из керамических блоков Pоrоtherm (обложен кирпичом) с монолитными перекрытиями. Дом строился для себя, имеются в наличии все документы. Технический отчёт об инженерно - геологических изысканиях, проект дома, фотоотчет со всеми этапами строительства (планирование участка, котлован, фундамент, возведение стен из керамических блоков Pоrоtherm, обкладка кирпичом, крыша). Кухня оборудована встроенной техникой: посудомоечной и стиральной машинами, электрической плитой, микроволновой печкой, духовкой, вытяжкой и холодильником. Дом меблирован и полностью готов к проживанию. 3 этажа.
1 этаж: большая гостиная, кухня/столовая, две спальни, санузел с душевой комнатой и котельной.
2 этаж: 3 спальные комнаты, спортзал и большой балкон, санузел с ванной.
3 этаж: зона отдыха, где расположен бильярдный стол, большой диван, а также кухонный уголок, оборудованный раковиной и холодильником, две комнаты для хранения вещей.
Коммуникации: в доме установлено два котла: один основной пеллетный на 32 кВт, с модулем GPS (зимой в самый сильный мороз расход 1 500 тонны пеллет в месяц (стоимость тонны пиллет 9 000 руб./мес.) и электрический 24 кВт. Вода: скважина глубиной 60 м и на участке колодец (7 колец). Канализация: септик 10 кубов (брали запасом). Электричество: два ввода: по 15 кВт. Газ магистраьный в 70 метрах от участка (подключение дома в феврале 2024 г). Установлены кондиционеры, теплые полы в ванных комнатах, коридоре и кухне, датчики света на лестнице. Установлена охранная система ОВД Одинцово и видеонаблюдение по всему периметру участка.
Участок 17 соток под ИЖС. Участок ровный, правильной формы. По всему периметру участка разведена вода для полива. Уложен рулонный газон, посажены плодово-ягодные деревья, туи, дуб, 3 кедра, за домом грядки с клубникой и земляникой. На территории теплая беседка с камином и мангальной зоной (общей площадью 30 кв. м со всеми подведенными подключёнными коммуникациями). На участке т построен большой банный комплекс площадью 100 кв. м без внутренней отделки (имеется готовый проект парилки и хамам). Поселок охраняется.
Вся необходимая инфраструктура в 2 км от дома (город Кубинка).
Удобная транспортная доступность с Минского, Можайского шоссе.

































































