Новорижское шоссе. 45 км, д. Дубровское.
Коттедж 216 кв. м под ключ. Дом 2022 года постройки из газосиликатного блока на монолитном фундаменте с железобетонными перекрытиями. 2 этажа. Дом новый, современный, очень теплый и уютный. Оборудован сантехникой и встроенной кухней с бытовой техникой. Частично меблирован. Готов к проживанию.
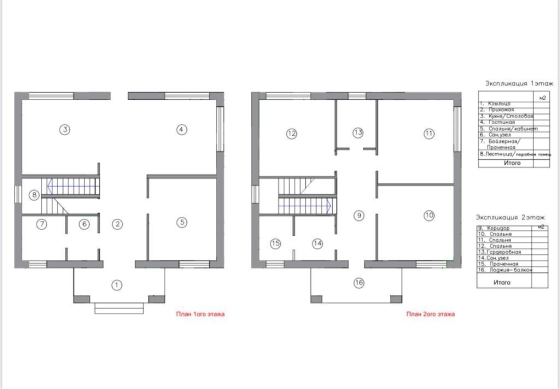
1 этаж: кухня-гостиная, гостевая спальня, с/у, техпомещение (бойлерная-прачечная, кладовка под лестничным маршем). Высота потолков 3 м.
2 этаж: 3 спальни, с/у, гардеробная, балкон. Высота потолков 3 м.
Коммуникации:магистральный газ, электричество 380/15 Квт, вода холодная/горячая (скважина, бойлер, котел), канализация (септик Топас). Оптоволоконный интернет.
Участок 11 соток под ИЖС, ровный, высокий, правильной прямоугольной формы, с газоном.
Круглогодичное проживание, прописка, удобные подъездные пути. Приличные соседи, проживающие постоянно.
Тупиковая улица, закрытая на автоматический шлагбаум.
Рядом: лес, фитнес, бассейн, школа, магазины, конюшня, сыроварня. Г. Истра со всей необходимой инфраструктурой в 10 мин. на машине.
Удобная транспортная доступность по Новорижскому шоссе. До Москвы на машине 30 минут.
Любые дополнительные строительные работы в т.ч. по благоустройству территории, обустройству патио или прочих построек.
Расположениедеревня Дубровское, улица Сражения, 9А
Notice (1024): Element Not Found: Elements/Realty/sold_object_modal.ctp [CORE/Cake/View/View.php, line 425]











































































