Продается дом, 427 кв.м., 2/2 эт
| Стоимость | 52 000 000 |
|---|---|
| Комнат в доме | 4 |
| Категория земли | ИЖС |
| Тип комнат | раздельные |
| Право собственности | Собственник |
| Тип парковки | На улице |
| Ремонт | Евро |
| Этаж | 2 |
| Категория земли Avito | Индивидуальное жилищное строительство (ИЖС) |
| Тип строения | Дом |
| Площадь, кв.м. | 427 |
| Площадь участка, сот | 12 |
| Этажность | 2 |
| Материал стен | Блочный |
| Населенный пункт | деревня Архангельское |
|---|---|
| Шоссе | Боровское |
| Доп. Шоссе | Боровское |
| Населенный пункт рядом | д. Архангельское |
| От МКАД, км | 44.00 |
Киевское ш., 44 км, д. Архангельское.
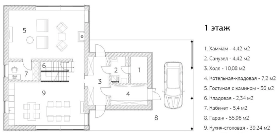
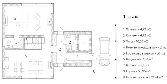
Коттедж 427 кв. м под чистовую отделку в закрытом охраняемом коттеджном поселке Зосимово. Дом 2023 года постройки из газобетонных блоков с монолитными перекрытиями, фундамент утепленная шведская плита. Дом Qhouse, разработанный строительной компанией Qtec совместно с архитектурным бюро Willen Associates Architecten (Германия). Дом сдается в отделке White Box с оборудованной котельной. Также возможна чистовая отделка; комплектация дома мебелью и бытовой техникой. Оконные системы: алюминиевый профиль Алютех, двойные стеклопакеты. Фасад: лиственница. Встроенные в фасад водоотводы. Архитектурная подсветка. Кровля: монолитная плоская кровля с полимерной мембраной Logicroof по технологии компании Технониколь. Просторная терраса на крыше. 2 этажа. Планировка тщательно разрабатывалась командой архитекторов, каждая деталь в доме продумана до мелочей.
3 спальни, включая мастер-спальню с собственной ванной комнатой и гардеробной, гостиная с камином и выходом на террасу, просторная гостиная-столовая, терраса на крыше, много мест для хранения, хамам, кабинет, гараж.
Коммуникации: магистральный газ, заведен в дом, центральные водоснабжение и канализация, теплые водяные полы. Выполнена разводка электричества, организована газовая котельная с оборудованием Baxi. Предусмотрена система резервного отопления. Проведены трассы под кондиционеры.
Участок 12,05 соток под ИЖС. Участок с выполненным ландшафтным дизайном: высажены крупномерные деревья, кустарники, газон. Организована зона отдыха вокруг кострища. Подъездная дорога и тропинки уложены брусчаткой фабрики Готика. Забор выполнен в стиле фасада дома и обшит натуральным деревом. Установлены автоматические ворота и калитка. Поселок огорожен, охраняется, въезд через КПП. Поселок Зосимово полностью застроен и благоустроен.
Рядом лес. Удобная транспортная доступность до лучших школ и университетов. Школьный автобус местной школы заезжает прямо на территорию поселка. До центра даже в час пик можно доехать всего за час.
Удобная транспортная доступность с Киевского шоссе.

































