Калужское ш., 32 км, д. Лужки.
Коттедж 211,4 кв. м под отделку в закрытом охраняемом коттеджном поселке Солнечный город. Дом 2021 года постройки из керамоблока, облицованного кирпичом, фундамент монолитный ж. б. ростверк, монолитная ж. б. плита, лестница монолитная, перекрытия между этажами ж. б. плиты. Идет черновая отделка. 2 этажа.
1 этаж: кухня-гостиная, кабинет-спальня, котельная, тамбур, коридор, гардеробная, санузел, веранда.
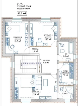
2 этаж: 3 спальни, 2 санузла, гардеробная, коридор.
Коммуникации: магистральный газ, центральные водоснабжение и канализация.
Участок 10 соток под ИЖС. Охрана, въезд через КПП, видеонаблюдение по периметру поселка. В поселке собственная инфраструктура: банный комплекс, СПА, ресторан с авторской домашней кухней, автомойка, детская площадка, гостиница, магазин, аптека, детский сад, курсирует школьный автобус до школы в п. Шишкин лес.
Рядом вся необходимая инфраструктура. На маршрутке до м. Тёплый стан всего 30 минут. В 2022 открытие метро в Троицке. От КПП 5 раз в день ходит маршрутка до м. Ольховая.
Расположениедеревня Лужки
Notice (1024): Element Not Found: Elements/Realty/sold_object_modal.ctp [CORE/Cake/View/View.php, line 425]



















