Продается дом, 137 кв.м., /2 эт
| Стоимость | 16 900 000 |
|---|---|
| Комнат в доме | 3 |
| Категория земли | Дачное некоммерческое партнерство |
| Тип комнат | раздельные |
| Право собственности | Собственник |
| Тип строения | Коттедж |
| Площадь, кв.м. | 137 |
| Площадь участка, сот | 7 |
| Этажность | 2 |
| Материал стен | Бревно |
Новорижское ш., 43 км, д. Леоново.
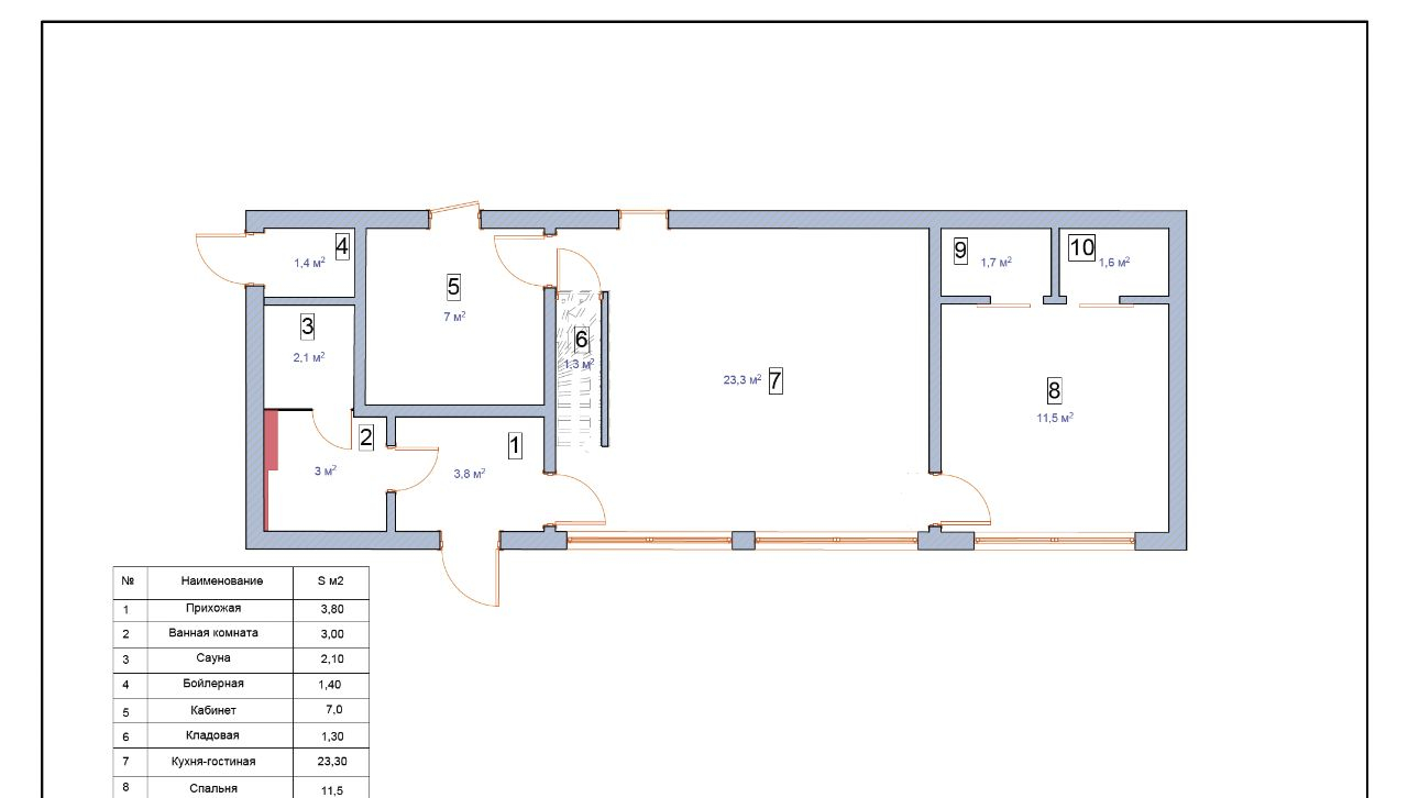
Коттедж 137 кв. м «под ключ» в закрытом охраняемом коттеджном поселке Новолеоново. Дом 2022 года постройки на УШП-фундаменте. Потолки более 5 метров. Огромная L-образная терраса 49 м2. В коридоре установлен вместительный встроенный шкаф, главный санузел облицован керамогранитом, установлена вся сантехника и мебель, санузел совмещен с сауной, укомплектованной печью. Просторная гостиная со вторым светом высотой 5,6 метров совмещена с кухней, оборудованной всей необходимой техникой, дизайнерская лестница отделанная рейкой из натурального дерева, скрывает под собой дополнительную кладовую комнату. На втором этаже расположен лофт, который прекрасно подойдет для детской или зоны отдыха; лофт оборудован вместительными встроенными шкафами во всю длину стены, позволяющими вместить все необходимое. Дополнительная комната на первом этаже может быть оборудована под детскую, третью спальню или кабинет. Дом меблирован и готов к проживанию. 2 этажа.
3 спальни, гостиная-кухня с техникой, 2 санузла, гардеробная, кладовая, терраса 49 м2, сауна. Мастер-спальня-свой санузел и гардеробная комната, панорамное остекление с раздвижным порталом и выходом на террасу делает спальню в этом доме уникальной и неповторимой.
Коммуникации: магистральный газ, центральные водоснабжение и канализация, теплые полы на двух этажах.
Участок 7.27 соток. На участке смонтированы КНС, дренажная система для стока воды, выполнена парковка на 2 машиноместа c откатными автоматическими воротами, участок огорожен забором из 3D сетки, по периметру посажены 4-метровые сосны, обустроен газон, зона барбекю с костровой чашей и шезлонгами, дорожки. Поселок полностью построен и обжит, центральные коммуникации и канализация, готовые дороги и тротуары, собственный парк на 6 га, прогулочные тропинки, зоны барбекю, 3 детские площадки, спортивная площадка и оборудование для занятий Work out выгодно отличает КП Новолеоново. Поселок огорожен, охраняется, въезд через КПП.
Рядом вся необходимая и богатая инфраструктура.
Удобная транспортная доступность с Новорижского шоссе.





























